Eladó ház, 89.900.000 Ft

Csobánka Csobánka, eladó ház

KIZÁRÓLAG IRODÁNK KÍNÁLATÁBAN!

Csobánka központjában, kisforgalmú, csendes mellékutcában eladó egy 2024-ben felújított családi ház.
A " kádárkocka" 1970- ben épült masszív betonalapra, B 30 as tégla falazattal. A külső falak 15 cm vastag grafitos szigetelést kaptak a felújítás során, illetve a tető és a padlózat új vízszintes szigeteléssel lett ellátva.
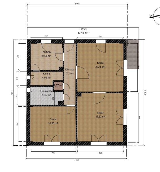
Helyiségei: Előszoba, konyha -étkező, spájz,
3 szoba,
kádas fürdőszoba-wc + egy külön wc még kialakítható, a csatorna és vízkiállás ki van építve.
Az épület alatt 35 nm-es száraz pince van, a tetőtér beépíthető!
A lakószint előtt teljes épülethosszúságban hangulatos "muskátlis" terasz húzódik. Innen nyílik panoráma szemközti hegyek felé. A terasz is új burkolatot kapott.
Az ablakok fából csináltatott hőszigeteltek 3 rétegű üvegezéssel. Az otthon melegét turbó gázkazán adja, de a hálószobában van egy tömegkályha, melynek sajátossága, hogy egy nap egyszer kell felfűteni, és egész nap adja le a meleget.
A fűtésszámla alacsony, bőven az engedményes kereten belül marad télen is!

A ház körül a kert egy része térkövezett, másik része fás, virágos, a kert hátulja a patakkal határos, rendkívül hangulatos.
Az ingatlanon áll még egy 3 állásos garázs és 2 db tároló. A telek sík igazi madárcsicsergős :), kerített, külön helyrajzi számon 1/1 tulajdon.
Csobánka főtere 5 perc gyalog, ahol buszmegálló, élelmiszer áruház, kultúrház, könyvtár, óvoda, iskola található.
Csobánka csodás kirándulóhelyek kiindulópontja, a jó levegőt a környező erdők garantálják.

Ha felkeltettem érdeklődését és úgy érzi, hogy szívesen lakna egy csendes mellékutcában mindenhez közel, ne várjon, keressen még ma!
Várom hívását hétvégén is! :)
Lengyel Katalin

Egyéb adatok

  • Ház típusa: családiház
  • Alapterület: 100 m2
  • Kert mérete: 719 m2
  • Terasz mérete: 20 m2
  • Szobák száma: 3
  • Állapot: használt – felújított
  • Fűtés: gáz + alternatív
  • Tájolás: D
  • Szintek száma: 1
  • Övezet: lakó
  • Közművek: villany,gáz,csatorna,internet
  • Tetőtér: beépíthető
  • Építés éve: 1960

Extrák

  • garázs
  • tároló
  • terasz
  • kerthasználat
  • alacsony fenntartási költség
  • beépíthető tetőtér
  • boltok a közelben
  • csendes környék
  • fűtésmérő
  • iskola a közelben
  • jó közlekedés
  • központi elhelyezkedés
  • melléképület
  • modern szigetelés
  • pince
  • új nyílászárók

KAPCSOLAT

Név: Lengyel Katalin
Tel: +36202515791
E-mail: lengyelkatalin.hexi@gmail.com
Elküldöm e-mailben

Mely képek kerüljenek a lapra?

A nyomtatáshoz kérjük engdélyezze böngészőjében a felugró ablakot!